Station Road

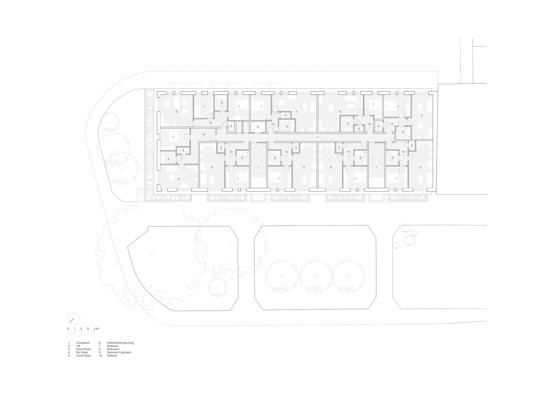
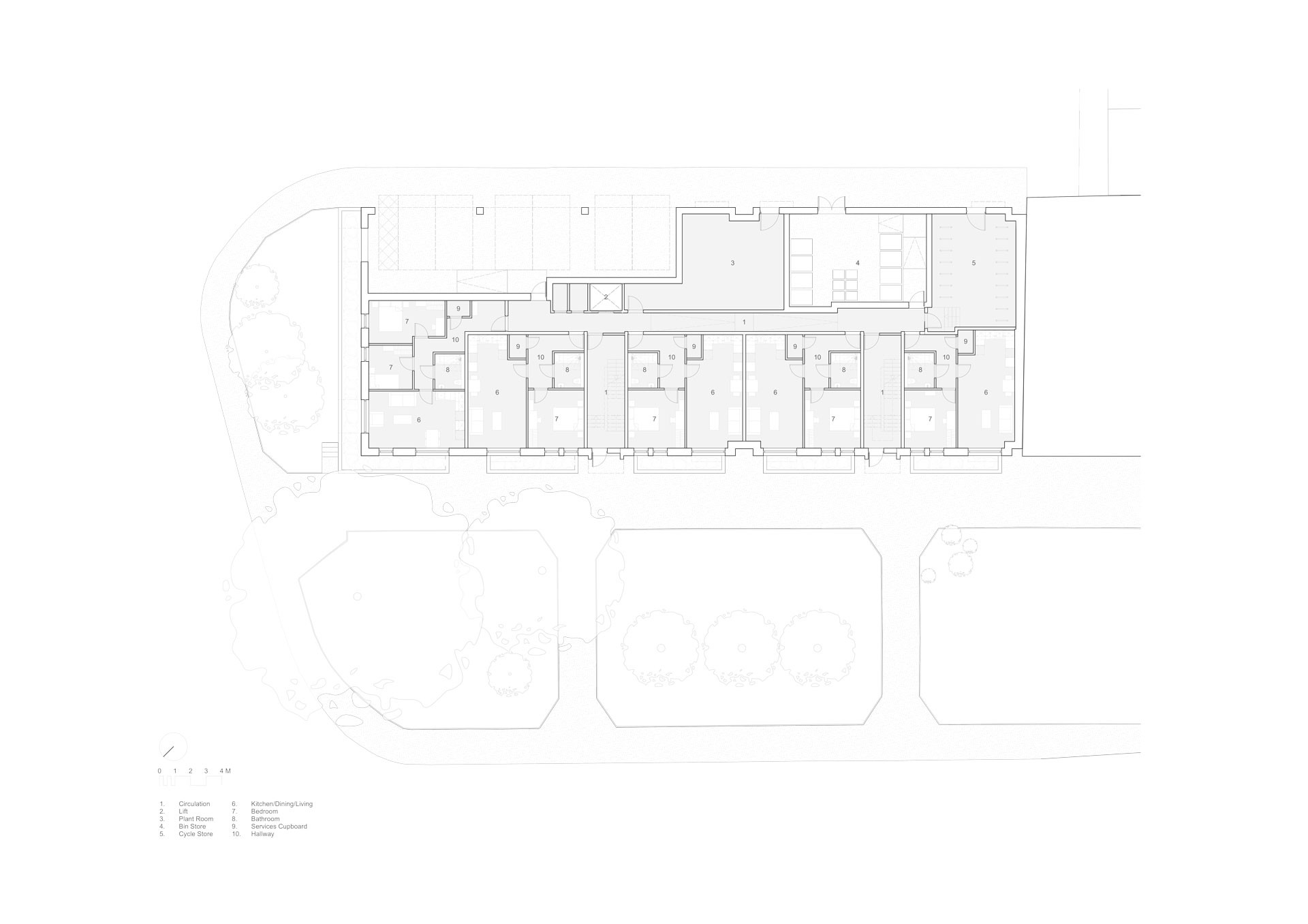
Centrally located on a brownfield site in the town of Swinton, Salford, the scheme will provide 32 new homes for social rent.
Define Architects and Regin Group have worked closely with housing provider, ForHousing, to produce a high-quality development, using a paired back palette of natural materials. The facade integrates with local typologies, featuring two complimentary tones of brick.

Double stacked soldier coursing and projecting alternate courses add detail to the façade and break up the mass.
The scheme will provide ​ a mix of 1 and 2 bed apartments designed to meet the Future Homes Standard. Low carbon heating, a super-insulated envelope, and solar panels will make it "zero-carbon ready" with drastically reduced emissions (75-80% less than current standards) to help meet net-zero targets.
Construction is planned to start on site Spring 2026. 

Proposed third floor plan

Proposed first and second floor plan

Proposed ground floor plan

Project Information

Client:

ForHousing

Location:

Swinton, Salford

Services:

Architectural Design, Concept Design, Technical Design, Planning, Construction

Status:

Pre-Planning

Design Team:

Project Team:

Depict - CGI Visualisations
Regin Group - Contractor