Concept Store

Concept Store seeks to re-imagine the conventional local store, revolutionising it into a supermarket, deli and bubble tea bar. Rooted in nature and inspired by traditional material & colour palette associated with ancient traditions, the project challenges the conventional through forward-thinking interior design.

3D Visualisation - View towards Pay Stations.

The interiors were inspired by the different regions across the the asian continent through a careful play between robust dark materials and soft natural materials. A practical yet elegant approach to architectural interiors. 

Rich colours are uaed at high level to create a sense of warmth, with all exposed mechanical services sprayed to match. A contrasting mix of black and white,, gloss and satin finishes complete the base material palette whilst key areas of interest such as the 'pay-points' are accented with red textured finishes. 

"The project is a careful blend of industrial and natural materials which draws upon inspiration from the different regions of the asian continent."

Ashley Taylor-Watts

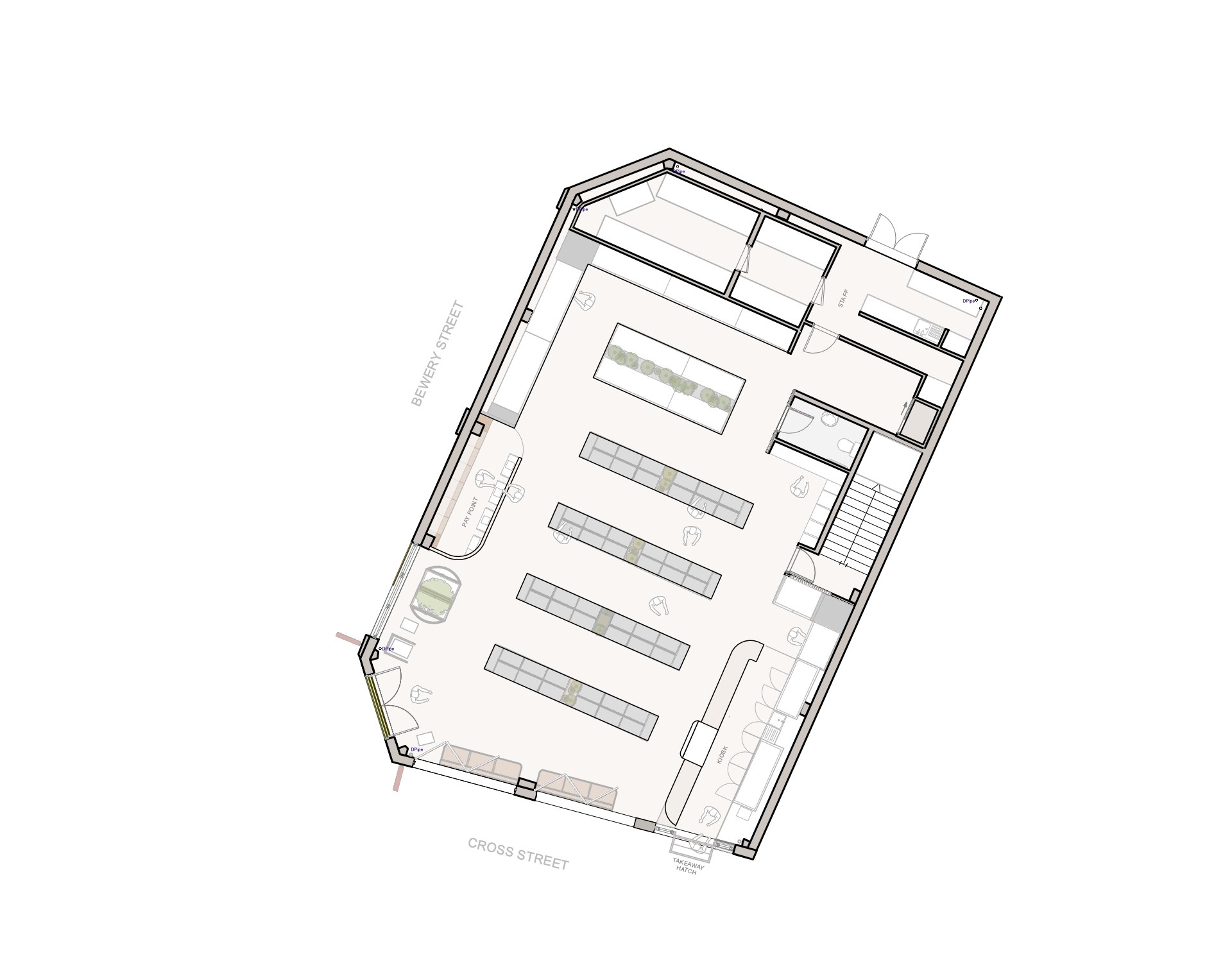
Floor Plan.

In areas of higher footfall, larger open plan spaces are provided; creating flexible, dynamic areas. Within these areas the harder wearing materials are located. 
3D Visualisation - View from the 'walk-thru' on Cross Street.
The bubble-tea bar provides a new offering for the local community and the store. With a "walk-thru" located on Crross Street, Altrincham, the 'grab-n-go' offering seeks to enhance the connection between the store and the town.
3D Visualisation - View from the Front Entrance
3D Visualisation - View towards the rear of the Store.

Project Information

Client:

Private Client

Location:

Altrincham, UK

Sector:

Services:

Interior Design, 3D Visualisations, Technical Design

Status:

Completed 2023