The Peele

Working within the constraint of an existing building, the 120 bed mental health facility for Equilibrium Health Care is planned to come on stream early 2024 and will provide world beating innovation in Mental Health Care in the Manchester area.
The brief was to re-imagine key sections of the home, introducing ideas of ‘streetscape’ and a ‘healing garden’ to elevate the quality of care offered at the facility. ‘Evidence-based Design’ supports the ideas of imitating daily routines in order to improve care and quality of life within Architectural Design.
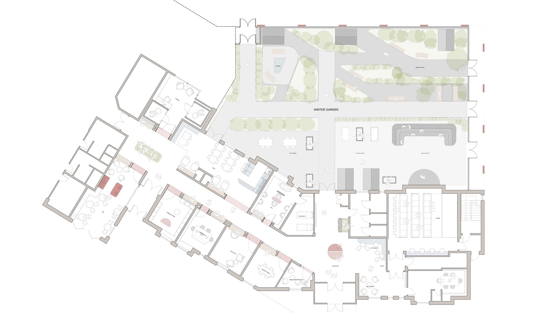
Proposed Plan of the new High Street & Public Realm
Taking inspiration from ‘New Urbanism’, the proposal creates a bucolic new town, portraying a dream- like, happy place which encourages the ideas of community through the placement of key spaces. Increasing the relationship between the internal and external, enhances the daily user experience by imitating occurrences in every day life.

Axonometric of the new Entrance Space.

The streetscape and winter garden areas create an environment which reference past memories in a residents life. The idea of a daily trip to the shop and stopping on the high street to talk to neighbours or friends helps maintain a daily routine, as well an encouraging people to move and make individual choices. The design strategically places benches throughout the key social areas to encourage people to move whilst knowing they have the opportunity to stop, giving back the freedom of movement.
The Spa
The Public Restaurant
The Pub

"People respond to a sense of place and space. Placing key furniture and objects as part of the design encourages people to move towards a destination. The objects become part of a daily journey throughout the spaces, essentially becoming muscle memory."

Ashley Taylor-Watts

Axonometric view of the proposed Winter Garden.
Adding additional accommodation areas, accompanied with social spaces, will increase the overall well-being within the home, creating an innovative and forward thinking place for later living. By retrofitting the existing care facility, the thermal performance of the building envelope is improvedwhilst creating a better, more controlled environment for the residents.

3D visualisation of the proposed Winter Garden.

The proposed winter garden creates a year-round usable and enjoyable space. A highly efficient thermal envelope and ETFE roof simulates a controlled outdoor setting, preventing over heating and cooling compared to conventional glass structures.

Being mindful that we are progressively getting younger in care, our design combined with the key concepts and architectural narratives, has created a space which responds to the client brief as well as creating a safe and homely environment for all residents at the Peele.

Project Information

Client:

Equilibrium

Location:

Manchester

Sector:

Services:

Full Architecturel Services, Construction

Status:

Stage 4/ Stage 5 - Construction

Project Team:

Sarah Doubleday - Freelance
Louis Howard - Enabl
Matthew Dixon - Enabl