Highgrove House

A series of interventions to an existing Dementia Care Home, which replaces areas of the existing care home and has been designed to reflect and support the notion that healing architecture has a positive effect on patients with early and advanced onset dementia.


The new interventions stem from our continued research into dementia care to encourage residents to participate in activities like gardening, handicrafts, games, social interaction and day-day life activities, in this way, continuing their everyday life.  
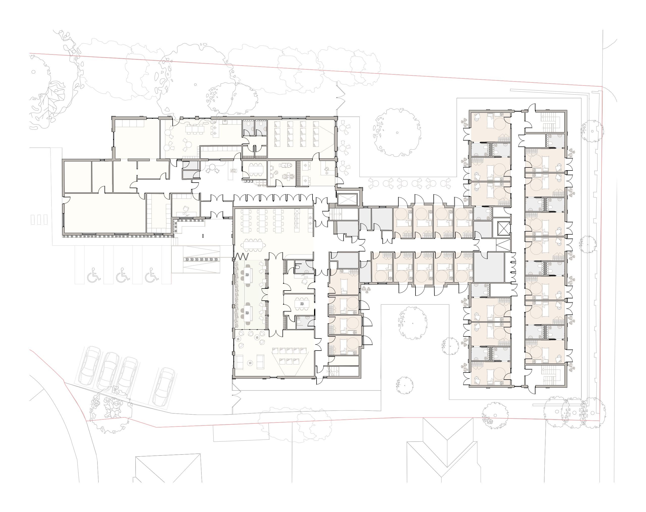
Proposed Ground Floor Plan
The project was designed at a scale that responded to a tight urban sight and adapted to the neighbourhood, presenting a combination of spacious views and privacy for the patients.  The spaces and functions are varied in different degrees – going from quiet privacy to social activities, so people have opportunities to choose according to individual needs and moods. To the entrance a new high street, cafe and cinema room provide a public realm inside for residents and family to meet.
View from Preston Road
Street Frontage of Accommodation Wing
Two new extensions bookend the existing home to create a new entrance frontage whilst a new three storey accommodation block creates a new public face from a main arterial road into the town. The building forms adopt key datums of the existing buildings; opting for flat roof building forms allowed us to increase internal floor to ceiling heights for the new social and accommodation areas. Floor to ceiling glazing across the facade aims to provide more natural daylight and ventilation into the home, improving the living standards of residents.
The new accommodation block provides 39 additional bedrooms. Creating active corridors provides an opportunity to implement dual aspect views from bedrooms. With the majority of activity taking place inside, secondary glazing into the corridor from bedroom spaces allows the residents to connect to other residents when desired. 
New Bedroom Accommodation
Revised entrance space and Public Realm.
Proposed Day Spaces with external garden spaces.

Project Information

Client:

Unity Homes

Location:

Chorley, Lancashire

Sector:

Services:

Architectural Design, Concept Design,

Status:

Planning