Blue Hayes

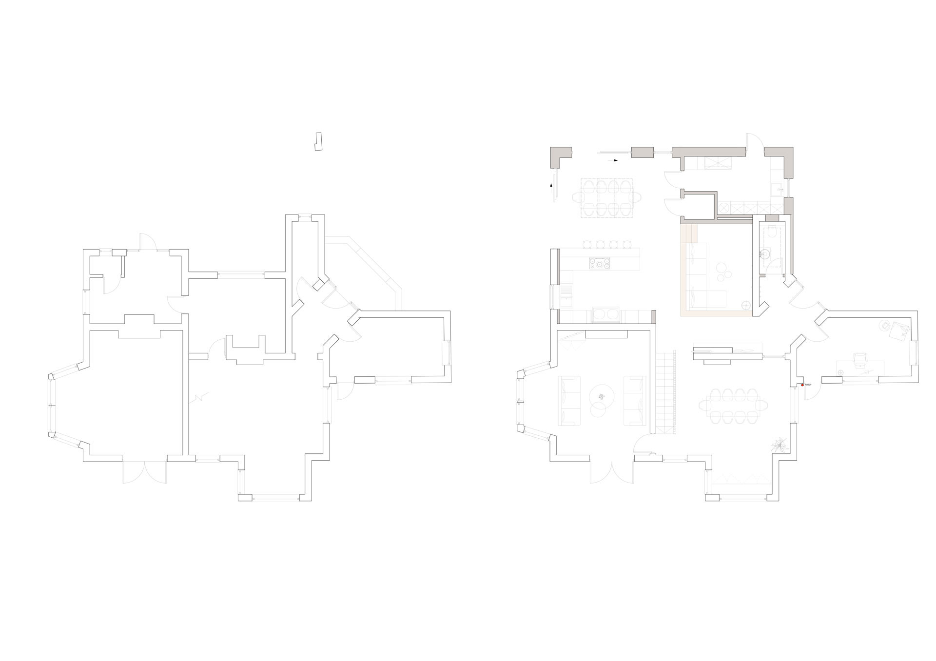
Nestled within the Woodland of Mortimer West End, Berkshire, Blue Hayes focuses on the refurbishment of an existing period property in response to the needs of a growing family.

The brief focused around enhancing the connection to the surrounding gardens whilst improving the flow of the existing house.
The material palette focuses on applying natural materials to the new 'additions' of the property, which juxtapose  the existing red brick. 

The extension has three active frontages, all responding to key views across the site. The rear facade has larger expansive glazing, opening out onto a new patio space.

"The connection between the existing property and the natural surroundings became an integral part of our design concept. Over-time the contemporary design will blend into the landscape, allowing future generations of the family to enjoy the property."

Gavin Watts- Project Lead Director

Original in-house CGI for the scheme.

Interior CGIs

Project Information

Client:

Private Client

Location:

Mortimer West End, Berkshire

Sector:

Services:

Architecture

Status:

Completed 2025

Design Team: