The Lodge

The first phase of a private residential masterplan, the Lodge provides a series of family spaces in the form of a single storey pavilion.

The building form is honest and simplistic with the detail focusing on the connection details of the timber cladding.
A simple palette of natural materials and aluminium provide a simple yet robust aesthetic to the design.
Using Modern Methods of Construction (MMC) and self-build principles through an off-site manufactured timber frame, the building form provides a series of different uses based on its site location including a large cantilevered corner which provides a covered external dining space.

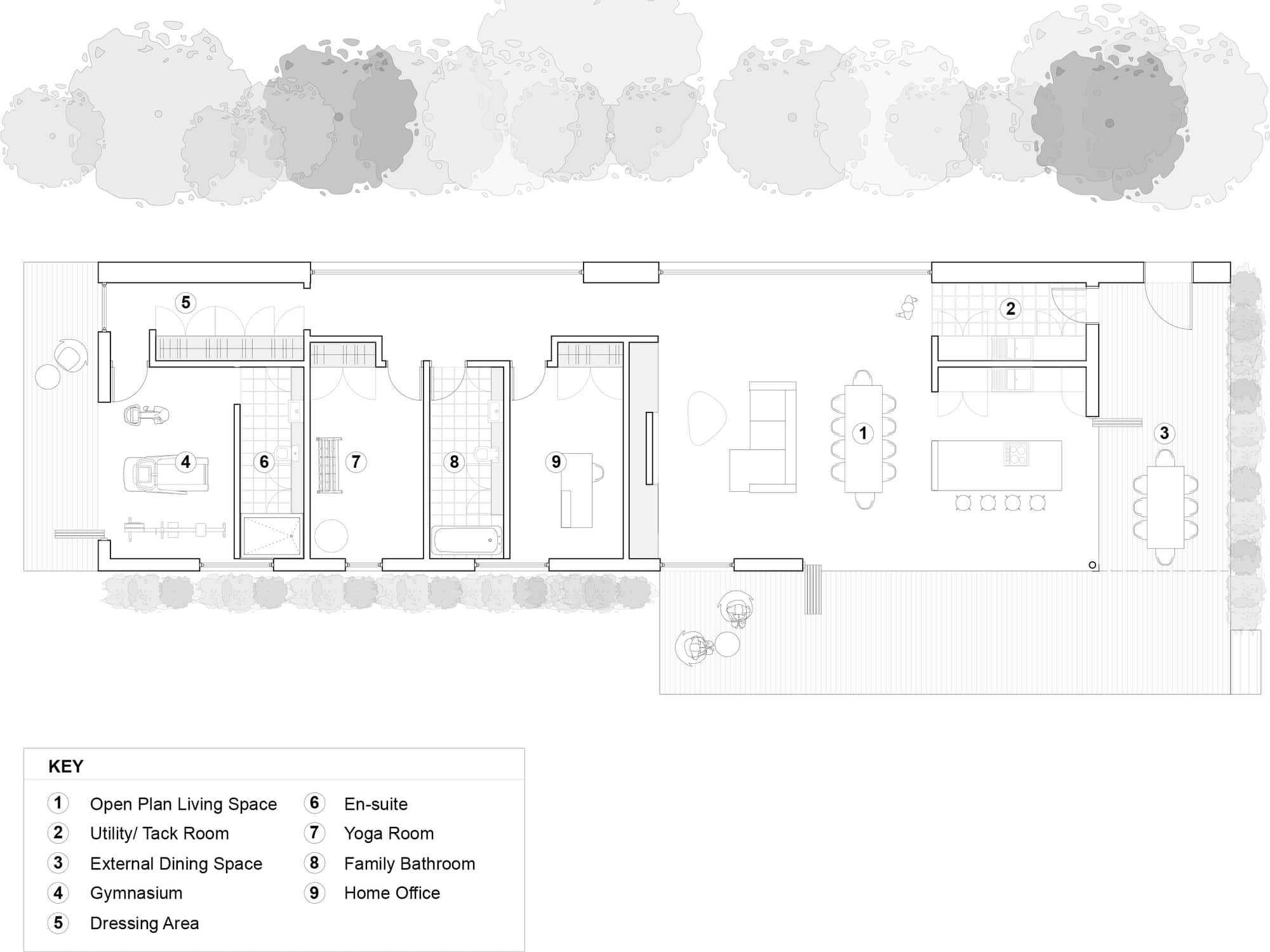
Floor plan highlighting the simple arrangement of private spaces to public spaces.

A simple palette of natural materials consisting of pre-treated cedar cladding, allows the building to nestle into the landscape.

The building form is carefully crafted to capture key views across the site. Where social spaces require a strong connection to the gardens, the building form peels away. Views towards the Apple Orchard and Forest are formed using a series of smaller, modest openings.
Concept diagram highlighting capturing key views across the site.
A cantilevered corner creates an outdoor covered dining space, looking over the apple orchard.

Project Information

Client:

Private Client

Location:

Waltham St Lawrence, Berkshire

Sector:

Services:

Architecture, Project Management

Status:

Completed 2020

Design Team: