Manor House Farm

Set within the beautiful rolling North Yorkshire landscape, Manor House Farm focuses on the conversion of a former mixed farm, with a farmhouse and traditional agricultural buildings, into a contemporary Scandinavian-inspired family home.
The client purchased the land with a view to restore the dilapidated brick barns and stables to create a family home, sensitively designed to complement the rural farmstead setting. The architectural approach seeks to adopt a strong juxtaposition between 'new' and 'old' through the use of contrasting materials, where only later additions to the farmstead are replaced with new build structures.

The existing farmstead is fully restored, salvaging and exposing key feature brickwork, timber soffits to bring a rich material palette to the scheme, whilst peeling back the layers of the existing property; allowing the architecture to tell the story of the existing farmstead.
The brief was unique, as the family desired a space for each of their children--containing a bedroom, bathroom and living space--to enable them to continue to visit once they are adults and be comfortable when accompanied by their own families. 
 
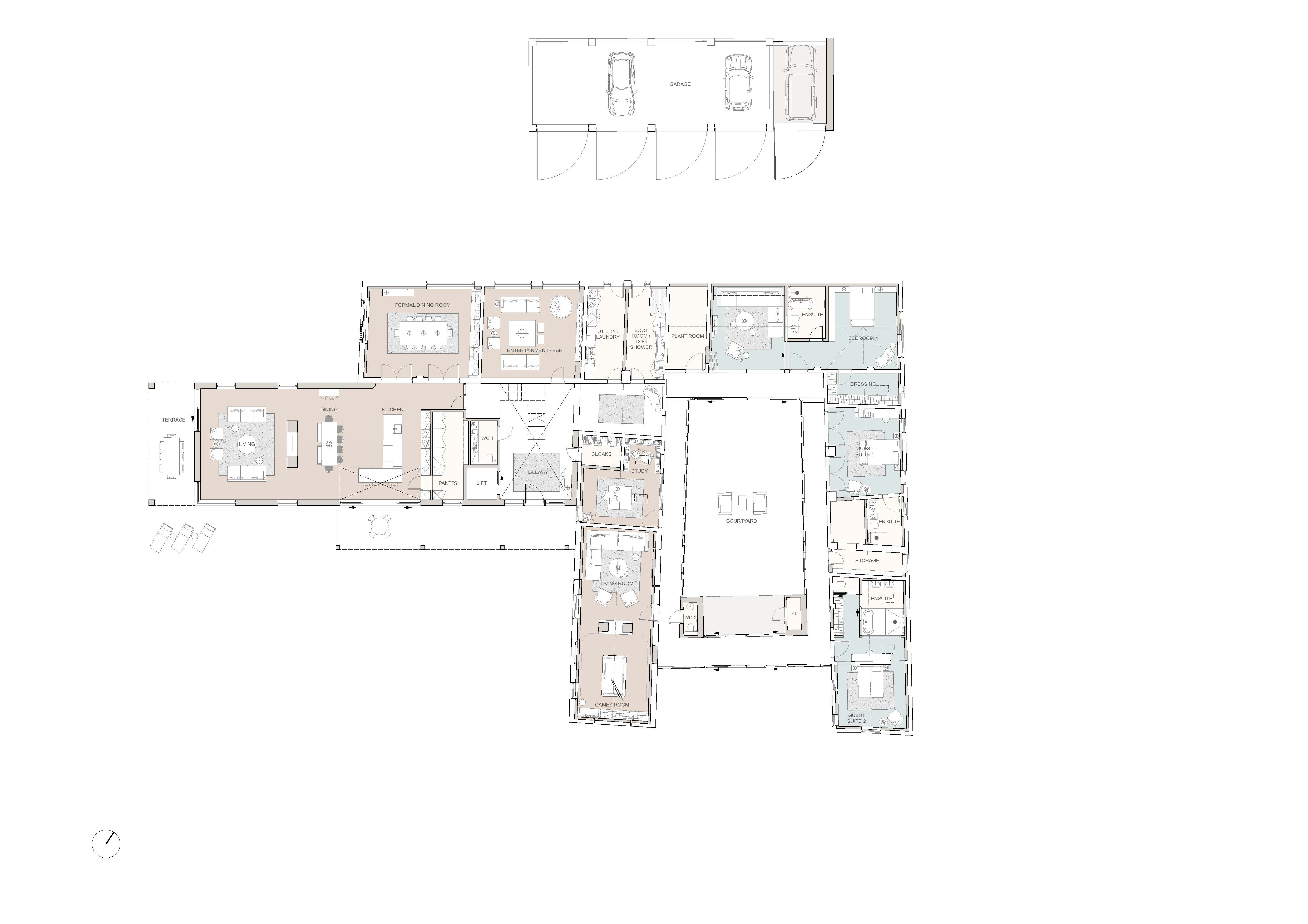
The programme is to fully restore the brick barns and stables, both internally and externally, and to add a contemporary extension to the south-west including an open plan kitchen/living space and the principal suite. The extension frames the views of the surrounding landscape, brings natural light deep into the building, and will increase the home to 9000sqft.

Proposed Ground Floor Plan
Proposed First Floor Plan
A glazed walkway is proposed to connect the buildings and re-establish the lost courtyard. The private, landscaped courtyard provides a secluded oasis for soaking in the sun’s rays in shelter from the prevailing wind.
Set within the Green Belt, our design approach remains consistent with our other residential schemes set within challenging sites. Through careful analysis of the existing farmstead, we have been able to create a sensitive proposal, which when viewed from around the site appears to have a reduced footprint than the previous farmstead. This creates a contextually rich, sensitive scheme, fitting for the surrounding area.

Project Information

Client:

Private Client

Location:

Yarm, North Yorkshire

Sector:

Services:

Architectural Design, Concept Design, Interiors, Planning, Construction

Status:

Pre-Application

Project Team:

Depict - CGI Visualisations