Farmstead House

Situated within the Metropolitan Green Belt, the proposal replaces the existing property and draws upon historic farmstead principles to create a series of interconnecting ‘barn-inspired’ structures; each housing different functions within the property.
A principle black timber ‘barn’ forms the central axis of the house and contains all formal entertainment spaces, as well as the primary bedrooms on the first floor. The main entrance to the house is located at the centre of the barn and features a minstrel gallery, encapsulating the concept of a grand country estate.

A smaller two-storey barn sits parallel to the principle building; featuring a library, study and plant room on the ground floor with additional bedrooms above.  To respond to the context and reduce the visual impact on the local surroundings, the two-storey structures are inspired by Berkshire Farmsteads, which feature a low-level masonry plinth with black horizontal timber cladding above.
View to entrance from Minstrel's Gallery
Main staircase
View to entrance from family wing
Master en-suite
View towards master suite
Oak 'tree' marking the centre of the property.
Internally, the material palette continues the same rigour as the external facades. The green oak frame celebrates the countryside barn approach. Light materials such as limestone floors and wall finishes compliment it, allowing the oak frame to remain prominent and light to reflect off hard surfaces.

Construction Photo - Sept 2024. View from the main approach to the property.

3D visualisations, The Cowshed
Primary family spaces, a gymnasium and a replacement swimming pool are housed within a series of single-storey barns. Positioned perpendicular to the primary buildings, these create a central courtyard and several rear gardens. Pre-treated cedar cladding wraps the external walls and roof to provide a lighter aesthetic in direct contrast to the black timber of the larger barns.
Pool House - Interior

"When designing a property of this scale; the application of farmstead principles has allowed us to separate the different functions into a rational layout and clearly define primary living, formal and ancillary spaces."

Gavin Watts - Director, Define Architects

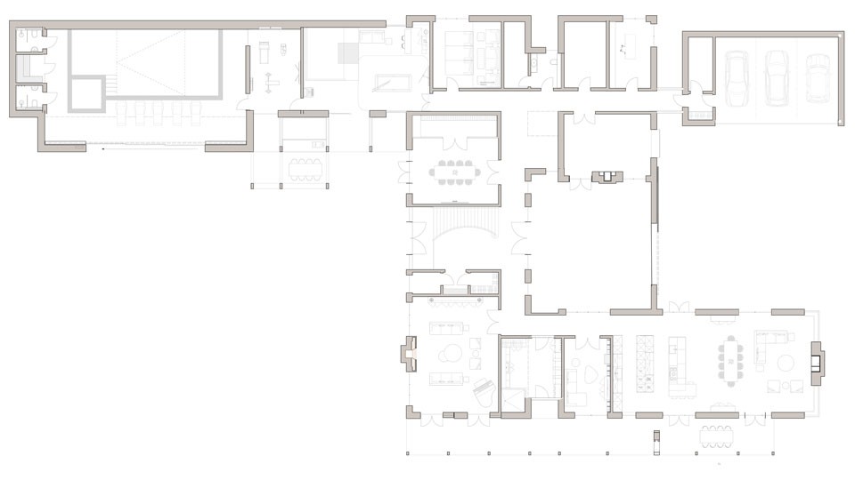
Ground Floor Plan
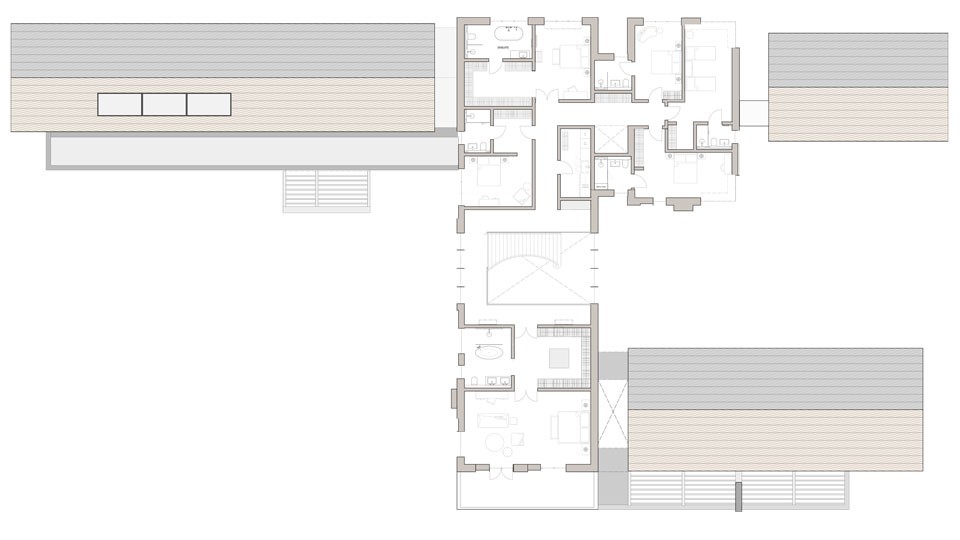
First Floor Plan
The central courtyard creates a semi-enclosed entrance to the property and naturally separates key spaces across the scheme; whilst also allowing sunlight to penetrate areas on the eastern boundary throughout the day. To connect the different elements of the property, transparent glass links are proposed. These lightweight connections provide functional circulation, while capturing views through to the courtyard and looking inward from key areas within the site.
On-site progress - September 2023
On-site progress - September 2023
On-site progress - September 2023
To prevent over-bearing on the eastern edge of the site, the proposed building line has been moved further inbound compared to the existing building footprint. Principle views from the house focus inwards across the site, shielding views from the boundary as well as maximising the exposure of key family spaces to sunlight. To minimise the visual impact of the proposal, all two-storey massing has been orientated perpendicular to the site edge.
Early Site Massing Model expressing key views and routes through the dwelling.
The concept celebrates the notion of a series of interconnected barns.
Original hand sketch portraying key architectural narratives.

Project Information

Client:

Private Client

Location:

Waltham St Lawrence, Berkshire

Sector:

Services:

Architecture

Status:

Completed 2025

Design Team:

Joe Misselbrook

Project Team:

David Ayre - Ayre Chamberlain Gaunt
Patrick Swift - APS Associates
Mark Williams - Engineeria
Marc Selligman - Milieu Consult
Jonathan Walton - Pegasus Planning